您现在的位置:九州(中国) » 合阁产品 » 模块化建筑

HEGE PRODUCT 集装箱房屋

九州网页

SINCE 2005

建筑无言 品质自现 节能环保

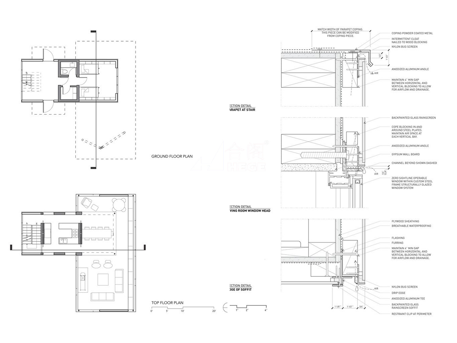
T形悬挑造型房屋

产品编号:HGM2-021
0
面积:236平方
这个度假小别墅以用阶梯通向树冠屋顶的方式进行设计,并在设计中把占地面积做到最小,以保护周围的树林植被免遭破坏,住宅前三层上面每一层都有一个包括了一间小卧室和浴室的迷你套房,顶层则是生活空间,就像森林中的树冠一样向四周散开,并在这里有着开阔的视野,可以看到远处的湖泊和山脉。屋顶户外平台上的生活空间一直扩展到周围的树冠上,成为了一个角度极佳的观景台。同时,用玻璃封闭起来的楼梯间也展现出了从底层到顶层的空间形态,背面涂有深绿色的玻璃表面不仅能够反射出周围的树林,同时也掩饰住了建筑的形态,到了黄昏时分,楼梯间内点缀着的迷你灯光就好像是森林里的萤火虫在夜幕中闪闪发光。
作为度假别墅,在冬季只有几个周末会被使用,而在夏季则几乎每个周末都会被使用。客户要求将该别墅设计成一个可持续发展,高效节能的建筑,并且将使用成本和维护成本降到最低。朝北面的叠放的卧室充分的利用了落地玻璃窗带来的充足的光线和视野范围。为了优化节能,设计师将供热和制冷分成了两部分来设计,为保持可持续性发展的策略,尽可能的在冬天减少加热方式,在夏天则避免使用空调。