您现在的位置:九州(中国) » 合阁产品 » 模块化建筑

HEGE PRODUCT 集装箱房屋

九州网页

SINCE 2005

建筑无言 品质自现 节能环保

白色双层叠加别墅

产品编号:HGM2-013
0
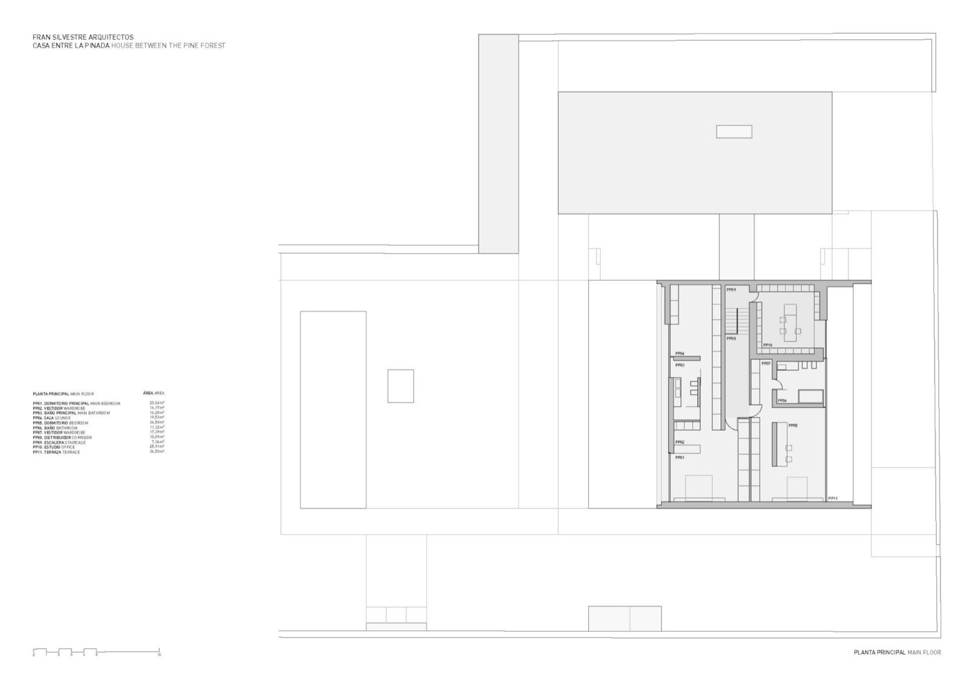
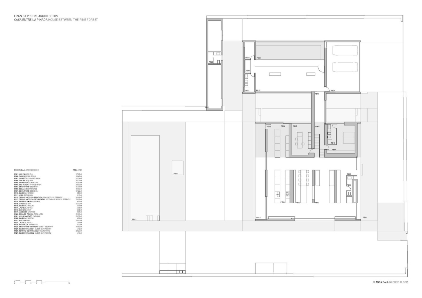
面积: 722 m2
该项目是为同一家族的几代人改造成的一个新的,有个性的住宅。原来这里的房子由在不同时期经过各种改造,形成了各种不同的结构系统。这里每一个房间都记载了这个家庭在生活中的不同瞬间。因此,如何保留该建筑的结构,空间,用途,花园和留下的记忆成为了设计的关键因素,新建筑如何以一种新的方式来呈现这些因素对整个家庭来说是至关重要的。
设计师在原有建筑的上面新增加了一个楼层,成为了这个新建筑一个新的空间。这样的话,休闲空间就有了地方,它可以包含在总的建筑范围内,并将那些小空间区域(院落,狭窄区域)聚合在一起后呈现出来,就像传统的地中海建筑一样。在室内,以中间层系统为主创建了一个大的不规则空间,其中有着各种不同的宽度和高度。原有建筑的支承结构里面设置了一些固定的家具,它们被涂成了灰色,像是树干一样,让人感觉就像住在花园里一样。这座位于松树林中的房子给人的感觉是一会儿像是穿梭在树林里,一会儿像是生活在美好的回忆中。