九州(中国)
关于我们
公司简介
企业文化
公司架构
荣誉证书
公司实力
生产设备
联系我们
招聘信息
合阁产品
旅游度假系列
酒店公寓
轻钢龙骨别墅
模块化建筑
太空舱系列
民宿
新中式
钢结构
活动板房
节点剖析
夹芯板
九州网页
最新动态
行业知识
市场活动
成功案例
国内工程案例
国外工程案例
室内平面图设计
服务支持
企业视频
联系我们
网站地图
网站地图
∴
全国服务热线
13927294888
微信号:13927294888
您现在的位置:
九州(中国)
»
合阁产品
»
酒店公寓
旅游度假系列
酒店公寓
轻钢龙骨别墅
模块化建筑
太空舱系列
民宿
新中式
钢结构
活动板房
节点剖析
夹芯板
悬挑玻璃钢构酒店
产品编号:
HGPH2-013
0
面积: 418 m2
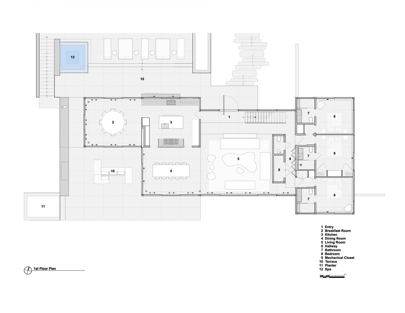
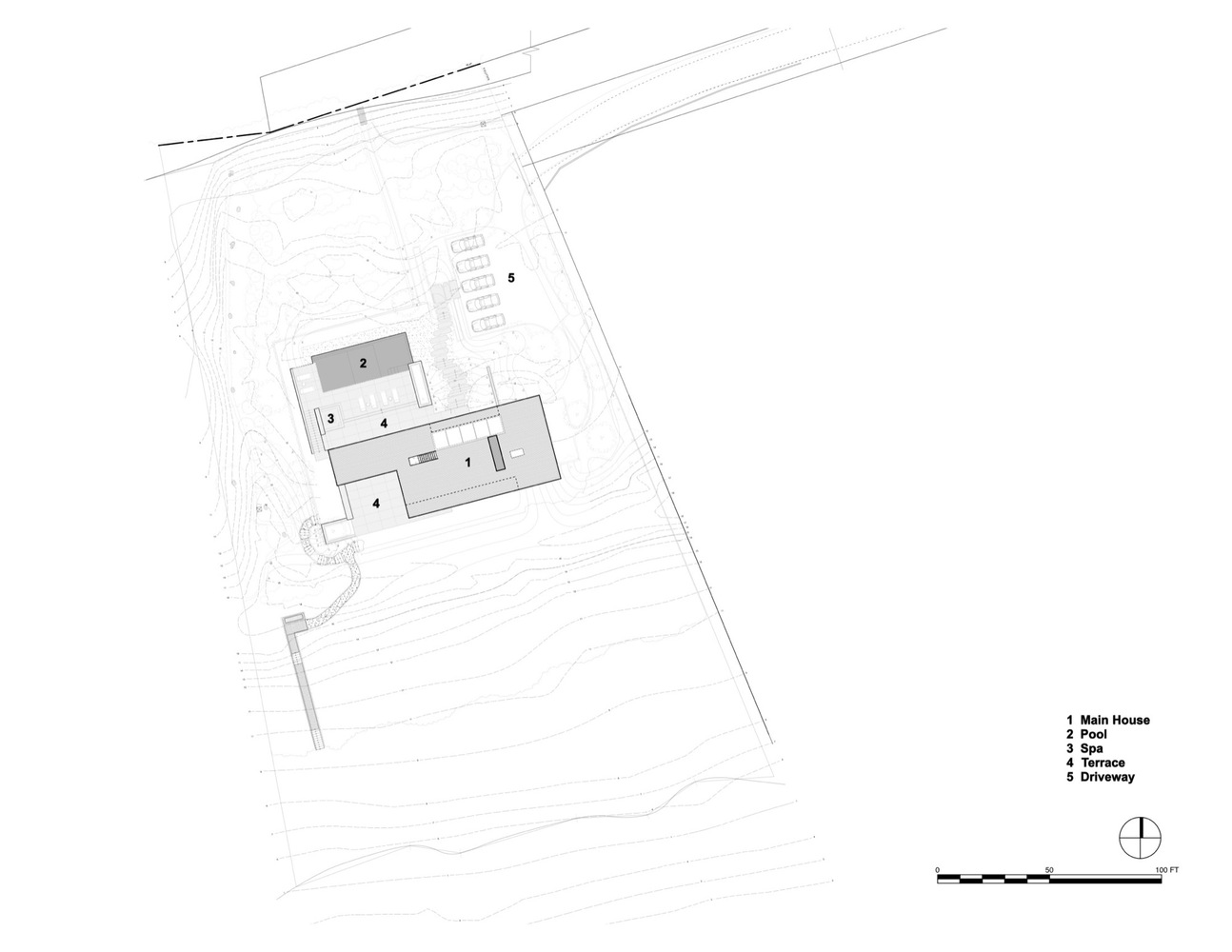
位于大海与池塘之间的景观居屋,似乎会被其周围的景观穿透。项目扮演的角色既是周围环境的延伸,又是一个庇护所,居住其中仿佛能感受到汹涌的水流与狂风的力量。房子建在桩上,采用钢框架结构。这所房子东翼的两层,是客人和家庭的卧室。每个房间都不大,从地板到玻璃天花板注重着与外部的联系,适当的遮挡使房间尽可能隔热。第二层楼板桥把孩子们的卧室和主人套房以及一个带有玻璃角落的起居室连接起来。
产品描述
欧冠网址
|
mk体育在线
|
天博首页
|
欧冠中文官网
|
万搏五大联赛
|
shengyou胜游体育
|
jbo电竞网官网
|
球速在线
|
天博页面
|