您现在的位置:九州(中国) » 合阁产品 » 轻钢龙骨别墅

HEGE PRODUCT 轻钢龙骨别墅

九州网页

SINCE 2005

建筑无言 品质自现 节能环保

现代别墅

产品编号:HGPH1-013
0
面积:380平方
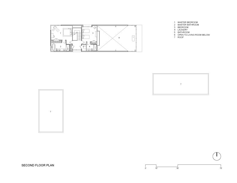
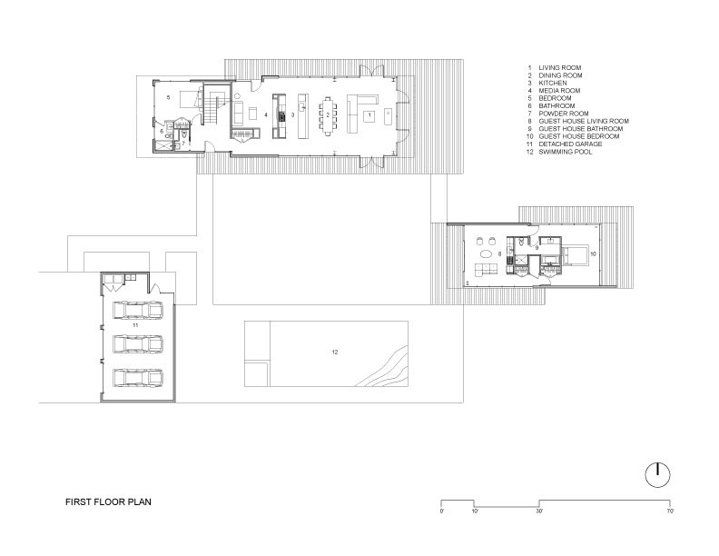
该别墅由三个独立的结构组成,正房,招待所和独立车库。这些建筑的朝向设计使户外的空间最大化,连接自然和人工因素。
内部和外部空间向外延伸到周围的连绵起伏的丘陵景观。设计模糊了内部和外部之间的界线。全玻璃幕墙和宽敞的大平台加强了人对当地景观的体验。
主题体量和客用体量与美景并置,并提供了对于加州景观观看的视角。自然与人工彼此镜像,这两个结构变化又相互联系。对于独立车库也是如此,这一一致性是由于普通材料和正式语言的混合使用,贯穿每个实体。住宅立方体这些凸角进一步成为建筑师实现融合内部和外部空间的关键。
从内部看,天际线与内部的倾斜线条的并置,天然和人造的几何互相对比。建筑物实体与间隙的关系在即使很临近的地方提供了私密性。
到了晚上,灯光从建筑物的空隙中露出,刺破窗口。从两个主要建筑体量的木制屋檐下下能够看到内部的景象。这三个结构上升为几何对应于周围的森林。玻璃和清水混凝土以及木头材质暴露在外,创造了独特的有地方特色的设计。