您现在的位置:九州(中国) » 合阁产品 » 轻钢龙骨别墅

HEGE PRODUCT 轻钢龙骨别墅

九州网页

SINCE 2005

建筑无言 品质自现 节能环保

现代化装配式房屋

产品编号:HGPH2-006
0
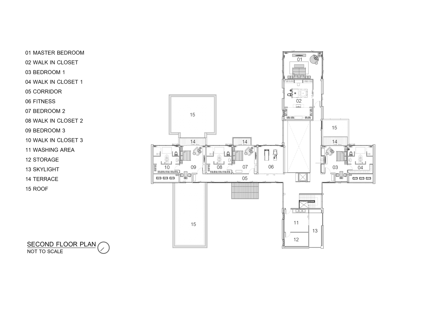
建筑师将起居空间布置在走廊的两侧,看起来就像建筑的外部区域。左边是客房,游戏室。右手边为家庭的私人区域,它包括一个与厨房相连的大客厅,电梯和楼梯通往二楼的4间卧室,包括游戏室和客厅。它的高度超过3米,可以欣赏外面的景色。
此外,玻璃镶板也有助于完全打开两河汇合处的视野。虽然房子的外观是现代热带风格。但建筑师试图通过应用当地的建筑风格进行设计,例如将泰国住宅的风格应用到这座住宅的高地下室中。从一楼可以看到它,看起来像一个被玻璃包围的房子的地下室。然后离开中心区域为户外区域和一个大花园。它就像一个中心区域,将功能分配到不同的部分。