九州(中国)
关于我们
公司简介
企业文化
公司架构
荣誉证书
公司实力
生产设备
联系我们
招聘信息
合阁产品
旅游度假系列
酒店公寓
轻钢龙骨别墅
模块化建筑
太空舱系列
民宿
新中式
钢结构
活动板房
节点剖析
夹芯板
九州网页
最新动态
行业知识
市场活动
成功案例
国内工程案例
国外工程案例
室内平面图设计
服务支持
企业视频
联系我们
网站地图
网站地图
∴
全国服务热线
13927294888
微信号:13927294888
您现在的位置:
九州(中国)
»
合阁产品
»
太空舱系列
旅游度假系列
酒店公寓
轻钢龙骨别墅
模块化建筑
太空舱系列
民宿
新中式
钢结构
活动板房
节点剖析
夹芯板
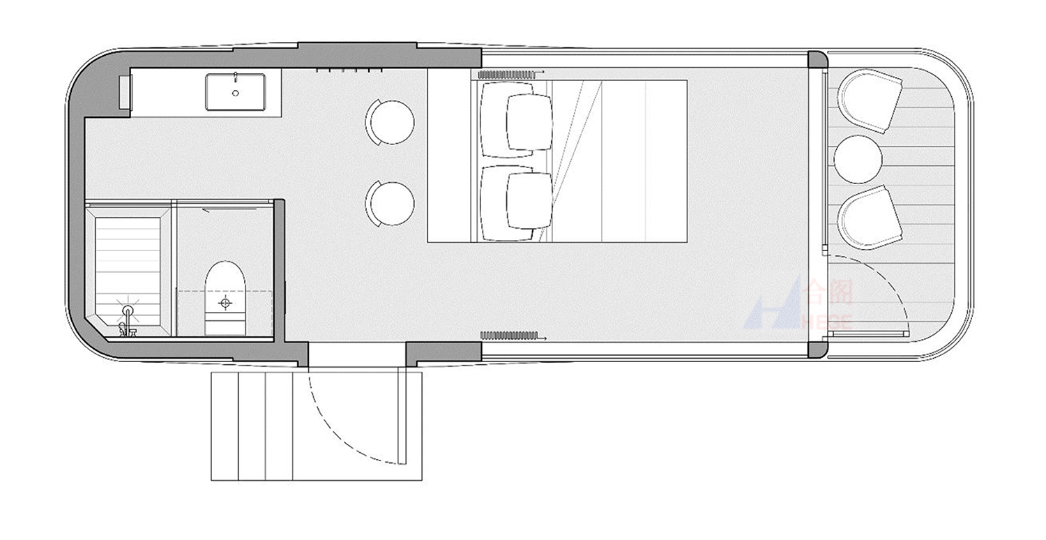
太空舱系列-E款【幻城】
产品编号:
HGMS001-E
0
产品描述
欧冠网址
|
mk体育在线
|
天博首页
|
欧冠中文官网
|
万搏五大联赛
|
shengyou胜游体育
|
jbo电竞网官网
|
球速在线
|
天博页面
|